
一席傳世宅,世代相傳
在臺北城市核心的安和路二段,土地的記憶與時代的脈搏在此共振。本案踞守都市樞紐,以“傳世宅”為設計哲思原點——不止于棲居,更在于承襲土地精魂,鐫刻家族溫度,并以當代設計語匯,勾勒未來生活的質感輪廓。
非尋常住宅樣板,而是一份值得典藏的生活提案,一種可世代相傳的空間品味。它精準回應現代都會對“質感、安定、層次感”的深層渴求,匠心擘畫一處交融人文溫度與精品氣質的理想棲所。


△臺北德運安和樣板間客廳
以開放式格局為基底,入口經過玄關,餐廳與客廳沿生活主軸線自然串聯。透過地坪材質的分割,進行場域的劃分與引導,其中客廳鋪設木地板,搭配胡桃木色天花,強化空間的包覆感與深邃氣息。
客廳底墻則運用大理石結合開放展示柜,柜門嵌入茶色長虹玻璃,獨特的紋理和半透光特性,呈現更為輕盈的感受。中廚結合中島與酒窖,整合生活機能的同時,延續金屬板的材質語匯,提升整體的統一性與設計連貫性,以真實的材料打造視覺與觸感的雙重體驗。




通往私領域的廊道,以米色藝術繃布溫柔包裹,形成空間與心理的優雅緩沖,奠定寧靜基調。主臥與兒童房延續公區設計精髓,通過對材質比例的重新調配,營造更為柔和舒緩的居家情緒。
更衣室靈感汲取自精品酒店配置邏輯:獨立飾品陳列區、精心規劃的長衣懸掛區與疊衣展示區,搭配兼具梳妝與書寫功能的工作臺,共同構筑了一個集高效收納與美學展示于一體的優雅場域。



“傳世宅”之精髓,在于超越形式優雅的精神傳承與生活承諾。于寸土寸金的城市脈絡中,真正值得典藏的,是那些能隨歲月沉淀價值、讓品味得以薪火相傳的空間。
唐忠漢大師深諳此道,以石材的渾厚、木質的溫潤、織品的細膩層層疊加,精妙平衡感官層次與實用功能,最終凝練成一處內斂與質感并存、經典與當代交融的生活范本。


△主臥套間

透過室內建筑的方式,體驗空間、光影、材質、細節,試圖透過以人為本的思考,探索現代東方的住宅方式,回歸真實的需要。提升心理儀式性的轉換,讓住宅不僅是滿足基本的需求,而是到達體驗的感受。讓我們所看到的不僅是設計,而是對于生活的深刻體會。

唐忠漢
·新港集團CMF首席設計顧問
·中國室內設計十大年度人物
·中國空間陳設行業領軍人物
·遠域生活(深圳)設計有限公司
·近境制作設計有限公司設計總監
意大利A‘DESIGN 鉑金獎得主
·北京清華大學軟裝研修班 講師
·安邸 AD100 中國最具影響力100位設計精英
·ANDREW MARTIN 國際室內設計大獎得主
·深圳市創想公益基金會專家顧問

新港集團(上海)CMF產品研發中心



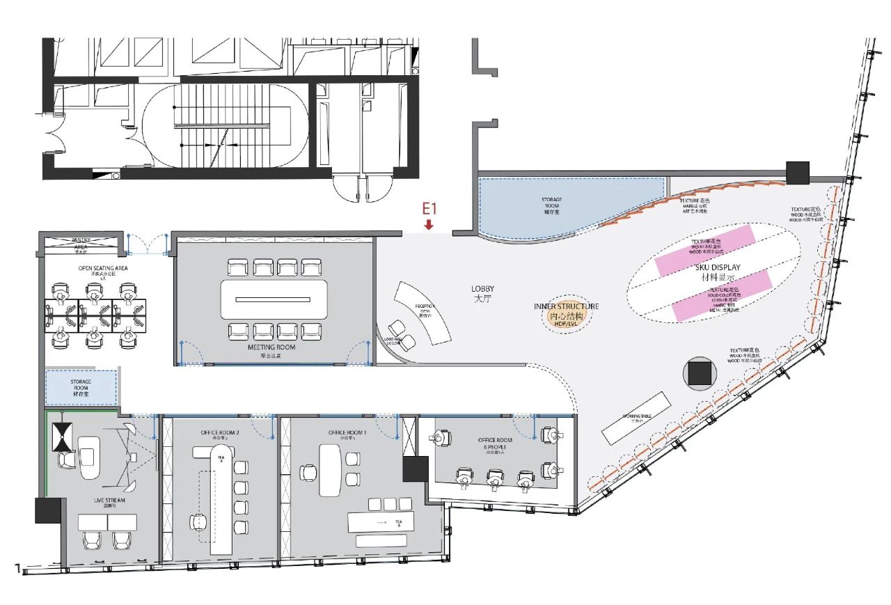
新港集團(上海)CMF 產品研發中心平面圖
新港集團(上海)CMF 產品研發中心
將于2025年9月盛大啟幕
誠邀您共鑒家居美學盛宴
共塑新港生活新美學
5公里 10公里 20公里以上
400-0017-315